|
LD-A型1-10噸電動單梁橋式起重機

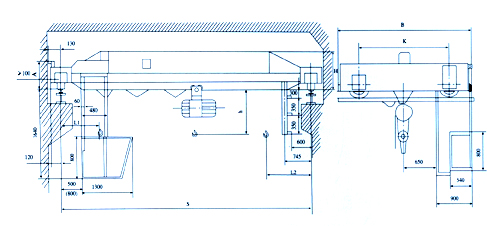
LD-A型電動單梁橋式起重機與CD1、MD1型電動葫蘆配套使用,成為一種有軌運行的輕小型起重機。本產品為一般用途的起重機,多用于機械制造,裝配車間及倉庫等場所。
如帶有馬達抓斗作吊具,則可裝卸和搬運散粒物品。本產品適用起重量1、2、3、5、10噸,跨度 7.5-
22.5米。起重機操縱方式設有地面(分為有線和無線兩種)、操縱室操縱,可供用戶選用。
本產品不宜在易燃、易爆的介質中或具有很大濕度與酸、堿類氣體的場所工作,也不適用于吊運熔化的金屬、有毒物和易燃物的工作。
本系列產品是采用國際先進標準制造的電動單梁起重機系列產品。整機結構新穎、工藝性好,操作靈活平穩,安全可靠。
|
跨度 |
提升
高度 |
工作制度 |
電流
種類 |
大車運行機構
|
配套電動葫 蘆 |
吊車
總長 |
主
要 尺 寸 |
總 重 |
最 大 輪 壓 |
|
運行速度 |
電動機 |
h |
H |
L1 |
L2 |
K |
B |
Total
weight |
Max.
Wheel Loading |
| |
|
|
|
地面操縱
|
操縱室操縱 |
型號 |
功率 |
型號 |
起升速度 |
運行速度 |
|
1t |
2t |
3t |
5t |
10t |
1t |
2t |
3t |
5t |
10t |
1t |
2t |
3t |
5t |
10t |
1t |
2t |
3t |
5t |
10t |
1-5t |
10t |
1-5t |
10t |
1t |
2t |
3t |
5t |
10t |
1t |
2t |
3t |
5t |
10t |
| m |
m |
|
|
m/min |
|
kw |
|
m/min |
|
m |
t |
KN |
| 7.5 |
6
9
12
18
24
30
|
A5 |
380V
50Hz
三相交流
|
30
20
|
30
45
|
ZDY21-4
ZDR12-4
|
2×
0.8
2×
1.5 |
MDI型
CDI型 |
8/0.8
7/0.7
8;
7 |
20 |
跨度span
S+2×
130 |
810 |
1000 |
1150 |
1380 |
1460 |
490 |
490 |
530 |
580 |
830 |
796 |
871.5 |
818.5 |
841.5 |
1235 |
1274 |
1292.5 |
1291 |
1310 |
1935 |
2000 |
2000 |
2500 |
2500 |
2.26
|
2.4 |
2.51 |
2.8 |
4.3 |
13.8 |
19.4 |
24.5 |
35.8 |
67 |
| 8 |
| 2.3 |
2.5 |
2.6 |
2.9 |
4.4 |
13.9 |
19.5 |
24.6 |
35.9 |
67 |
| 8.5 |
| 2.4 |
2.5 |
2.62 |
2.9 |
4.5 |
14.0 |
19.6 |
24.8 |
36.0 |
67 |
| 9 |
| 2.6 |
2.7 |
2.98 |
4.62 |
4.6 |
14.2 |
19.8 |
24.9 |
36.2 |
69 |
| 9.5 |
| 2.5 |
2.6 |
2.73 |
3.05 |
4.7 |
14.3 |
19.9 |
25.0 |
36.3 |
69 |
| 10 |
| 2.51 |
2.64 |
2.8 |
3.1 |
4.8 |
14.4 |
20.0 |
25.2 |
36.5 |
70 |
| 10.5 |
| 2.6 |
2.75 |
2.9 |
3.2 |
5.0 |
14.5 |
20.1 |
25.3 |
36.6 |
70 |
| 11 |
| 1495 |
875 |
2.0 |
2.7 |
2.84 |
3.2 |
5.1 |
14.6 |
20.2 |
25.4 |
36.7 |
71 |
| 11.5 |
| 1050 |
1400 |
580 |
660 |
2.04 |
2.87 |
3 |
3.7 |
5.2 |
14.7 |
20.5 |
25.6 |
36.8 |
73 |
| 12 |
| 2.1 |
2.93 |
3.1 |
3.8 |
5.3 |
14.8 |
20.6 |
25.8 |
38 |
73 |
| 12.5 |
| 2500 |
2500 |
3000 |
3000 |
2.8 |
3.0 |
3.2 |
3.9 |
5.4 |
15.1 |
20.9 |
26.1 |
38.3 |
73 |
| 13 |
| 2.86 |
3.1 |
3.2 |
3.97 |
5.5 |
15.3 |
21.1 |
26.2 |
38.5 |
73 |
| 13.5 |
| 2.9 |
3.1 |
3.3 |
4 |
5.6 |
15.4 |
21.2 |
26.4 |
38.7 |
73 |
| 14 |
| 1505 |
885 |
3 |
3.2 |
3.3 |
4.1 |
5.7 |
15.5 |
21.3 |
26.5 |
38.9 |
74 |
| 14.5 |
| 860 |
1060 |
1170 |
1415 |
580 |
660 |
785 |
3.1 |
3.3 |
3.93 |
4.5 |
5.8 |
15.8 |
21.7 |
27.8 |
38.8 |
74 |
| 15 |
| 3.2 |
3.4 |
4 |
4.6 |
5.9 |
16.0 |
21.8 |
28.0 |
40.0 |
75 |
| 15.5 |
| 3.2 |
3.5 |
4.1 |
4.7 |
6.0 |
16.1 |
21.9 |
28.2 |
40.2 |
75 |
| 16 |
| 3.3 |
3.52 |
4.2 |
4.8 |
6.1 |
16.2 |
22.1 |
28.4 |
40.4 |
76 |
| 16.5 |
| 3.3 |
3.58 |
4.3 |
4.9 |
6.2 |
16.2 |
22.2 |
28.5 |
40.6 |
76 |
| 17 |
| 3.38 |
3.64 |
4.3 |
4.97 |
6.4 |
16.5 |
22.3 |
28.9 |
40.8 |
77 |
| 17.5 |
| 870 |
1070 |
1175 |
1430 |
540 |
670 |
755 |
830 |
3000 |
3000 |
3500 |
3500 |
3.14 |
4.7 |
5.14 |
5.5 |
7.5 |
17.4 |
24.8 |
31.0 |
42.3 |
80 |
| 19.5 |
| 1110 |
1200 |
1475 |
580 |
795 |
830 |
885 |
4.2 |
5.58 |
5.8 |
6.7 |
8.2 |
18.4 |
26.8 |
32.4 |
45.0 |
82 |
| 22.5 |
|