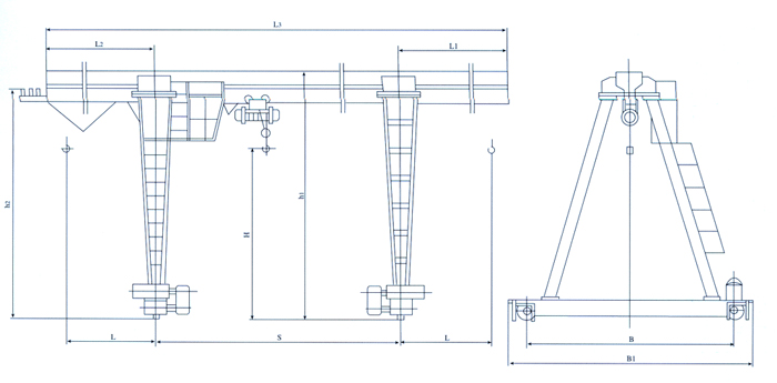
| MH型3-16噸電動葫蘆單梁門式起重機(箱體形狀)

本機是與CD1或MD1型電動葫蘆配套使用,適合于露天作業的固定跨間,本機禁止吊運易燃易爆物品,根據用戶要求還可制成單端外伸懸臂式或無懸臂式結構。
本機工作環境溫度為35℃一20℃,電源為三相交流50HZ.380V。
本機外形尺寸僅供參考。
| 起重量 |
跨度 |
起升高度 |
輪距B |
工作制度A5 |
電動葫蘆 |
運行機構 |
主要尺寸 |
最大輪壓 |
| 型號 |
起升速度 |
運行速度 |
運行速度 |
減速機 |
電動機 |
h1 |
h2 |
B1 |
L3 |
左懸臂長度L1 |
右懸臂長度L2 |
有效懸臂長度L |
起重機總重 |
| t |
m |
型號 |
功率 |
| 3-3.2 |
10 |
6 |
6 |
A5(中級) |
CD1
MD1 |
8
8/0.8
7
7/0.7 |
20 |
34.2 |
ZSC(A)-400-IV-1/2(套裝) |
YZ(R)132M1-6 |
2×2.5 |
7873 |
7600 |
7290 |
16420 |
3060 |
3560 |
2500 |
9.91 |
65 |
| 14 |
21820 |
3760 |
4060 |
3200 |
10.7 |
67.9 |
| 18 |
8023 |
28480 |
5240 |
5240 |
4200 |
11.4 |
70.8 |
| 22 |
8123 |
33640 |
5820 |
5820 |
5500 |
12.6 |
73.8 |
| 5 |
10 |
6 |
6 |
37 |
ZSC(A)-600-IV-1/2(套裝) |
YZ(R)132M1-6 |
2×2.5 |
8110 |
7777 |
7290 |
16670 |
3130 |
3540 |
2500 |
10.6 |
91 |
| 14 |
6/9 |
6/8 |
8260/11260 |
7837/10837 |
7290/9290 |
22070 |
3830 |
4240 |
3200 |
12/14.6 |
95/102 |
| 18 |
6/9 |
6/8 |
38 |
YZ(R)132M2-6 |
2×4 |
8411
/11411
|
7888/10888 |
7290/9290 |
28480 |
5240 |
5240 |
4200 |
15.4/17.7 |
103/110 |
| 22 |
6/9 |
6/8 |
8563/11563 |
7820/10820 |
7290/9290 |
35080 |
6540 |
6540 |
5500 |
18.1/20.8 |
108/119 |
| 8 |
10 |
6 |
6 |
37 |
YZ(R)132M1-6 |
2×2.5 |
8260 |
7837 |
7290 |
17200 |
3370 |
3830 |
2500 |
12.3 |
125 |
| 14 |
6/9 |
6/8 |
38 |
YZ(R)132M2-6 |
2×4 |
8411/11411 |
7888/10888 |
7290/9290 |
22600 |
4070 |
4530 |
3200 |
14.8/16.6 |
131/136 |
| 18 |
6/9 |
6/8 |
8563/11563 |
7820/10820 |
7290/9290 |
28600 |
5070 |
5530 |
4200 |
17.6/19.9 |
136/144 |
| 22 |
6/9 |
6/8 |
YZ(R)160M1-6 |
2×6.3 |
8763/11763 |
7920/10920 |
7290/9290 |
35660 |
6830 |
6830 |
5500 |
21.3/23.2 |
145/159 |
| 10 |
14 |
6/9 |
6/8 |
38 |
YZ(R)132M2-6 |
2×4 |
8611/11611 |
7868/10868 |
7290/9290 |
22600 |
4070 |
4530 |
3200 |
16.2/19.3 |
160/171 |
| 18 |
6/9 |
6/8 |
8786/11786 |
7943/10943 |
7290/9290 |
28600 |
5070 |
5530 |
5500 |
18.2/21.5 |
159/173 |
| 22 |
6/9 |
6/8 |
YZ(R)160M1-6 |
2×6.3 |
8986/11986 |
8043/11043 |
7290/9290 |
35660 |
6830 |
6830 |
3200 |
22.5/25.7 |
176/190 |
| 16 |
14 |
6/9 |
6/8 |
38 |
YZ(R)132M2-6 |
2×4 |
8888/11888 |
8045/11045 |
7290/9290 |
23100 |
4510 |
4590 |
4200 |
17.6/21.3 |
201/209 |
| 18 |
6/9 |
6/8 |
YZ(R)160M1-6 |
2×6.3 |
9088/12288 |
8145/11145 |
7290/9290 |
29100 |
5510 |
5590 |
5500 |
21.3/24.6 |
209/221 |
| 22 |
6/9 |
6/8 |
9288/12288 |
8245/11245 |
7290/9290 |
35760 |
6870 |
6890 |
|
25.3/28.5 |
224/232 |
|