|
QD型5-10噸吊鉤橋式起重機

QD型吊鉤橋式起重機是采用國際先進標準制造的系列產品。整機結構新穎、造型美觀、工藝性好、操作靈活平穩、安全可靠。
主要特點:
(1)橋架采用箱形主梁,自動埋弧焊焊接。
(2)小車導電采用工字鋼軌道電纜導電新裝置,安全可靠。
(3)起升機構根據要求還可設第二套安全裝置。增加可靠性。
(4)零部件標準化、系列化、通用化。
(5)操縱室視野開闊,全部機構均在操縱室內操縱,工作舒適操縱靈活。
本產品廣泛適用于普通重物的裝卸與搬運,還可配以多種專用吊其進行特殊作業,當露天使用時帶有防雨設備。表中數據為室內起重機用,室外起重機總重和輪壓約增加5%,起重機按使用繁忙程度分為中級(A5)和重級(A6)兩種工作制度。選用時應注明工作制度,工作環境的最高、最低氣溫及電源種類等技術要求。還可根據用戶要求的跨度設計制造。
|
起重量 |
t |
5 |
10 |
|
跨度 |
m |
10.5 |
13.5 |
16.5 |
19.5 |
22.5 |
25.5 |
28.5 |
31.5 |
10.5 |
13.5 |
16.5 |
19.5 |
22.5 |
25.5 |
28.5 |
31.5 |
|
最大起升高度 |
m |
16 |
|
速度 |
起升 |
A5 |
m/min |
11 |
7.56 |
|
A6 |
15.5 |
13.3 |
|
小車運行 |
37 |
43 |
|
大車運行 |
A5 |
89 |
91 |
90 |
91 |
84 |
|
A6 |
115.5 |
116.8 |
115.5 |
116.8 |
112.5 |
|
電動機 |
起升 |
A5 |
型號/kW |
YZR160L-6Z/13 |
YZR180L-8Z/13 |
|
A6 |
YZR180L-6Z/15 |
YZR200L-6Z/22 |
|
小車運行 |
YZR112M-6Z/1.8 |
YZR132M-6Z/2.5 |
|
大車運行 |
A5 |
YZR132M2-6/2×4 |
YZR160M1-6/2×6.3 |
YZR132M2-6/2×4 |
YZR160M1-6/2×6.3 |
|
A6 |
YZR160M1-6/2×5.5 |
YZR160M2-6/2×7.5 |
YZR160M1-6/2×5.5 |
YZR160M2-6/2×7.5 |
|
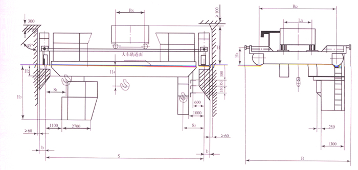
主要尺寸 |
H |
1753.5 |
1876 |
1926 |
|
H1 |
725 |
725 |
775 |
|
H2 |
-24 |
126 |
226 |
376 |
526 |
676 |
826 |
976 |
-24 |
126 |
226 |
376 |
526 |
628 |
778 |
928 |
|
H3 |
2526 |
2546 |
2596 |
2755 |
2906 |
2886 |
3036 |
3186 |
2526 |
2546 |
2596 |
2756 |
2906 |
2838 |
2988 |
3138 |
|
H4 |
44.5 |
544 |
494 |
|
B |
4500 |
4650 |
6100 |
5150 |
5290 |
6100 |
|
BQ |
3400 |
3550 |
5000 |
4050 |
4050 |
5000 |
|
BX |
1100 |
1400 |
|
B |
230 |
|
LX |
1400 |
2000 |
|
S1 |
800 |
1000 |
|
S2 |
1250 |
1350 |
| 重量 |
小車 |
A5 |
t |
1.81 |
3.36 |
|
A6 |
2.21 |
3.47 |
| 總重 |
A5 |
13 |
14 |
16 |
19 |
21 |
26 |
29 |
32 |
15 |
17 |
19 |
21 |
24 |
28 |
32 |
35 |
|
A6 |
14 |
15 |
17 |
20 |
22 |
27 |
31 |
34 |
15 |
17 |
20 |
22 |
25 |
30 |
33 |
36 |
|
最大輪壓 |
A5 |
t |
8 |
8.5 |
9.1 |
9.8 |
10.4 |
11.7 |
12.5 |
13.2 |
10.9 |
11.5 |
12.3 |
12.9 |
13.6 |
14.9 |
15.8 |
16.6 |
|
A6 |
8.5 |
9.1 |
9.2 |
10.4 |
11.1 |
12.5 |
13.3 |
13.8 |
11.1 |
11.8 |
12.6 |
13.1 |
13.8 |
15.4 |
16.3 |
17.1 |
| 薦用鋼軌 |
|
38kg/m |
43kg/m |
| 電源 |
三相交流 380V 50Hz |
|